Rif: IMMO-125529493
FARA GERA D'ADDA
BERGAMO
FARA GERA D'ADDA: NUOVO INTERVENTO RESIDENZIALE.
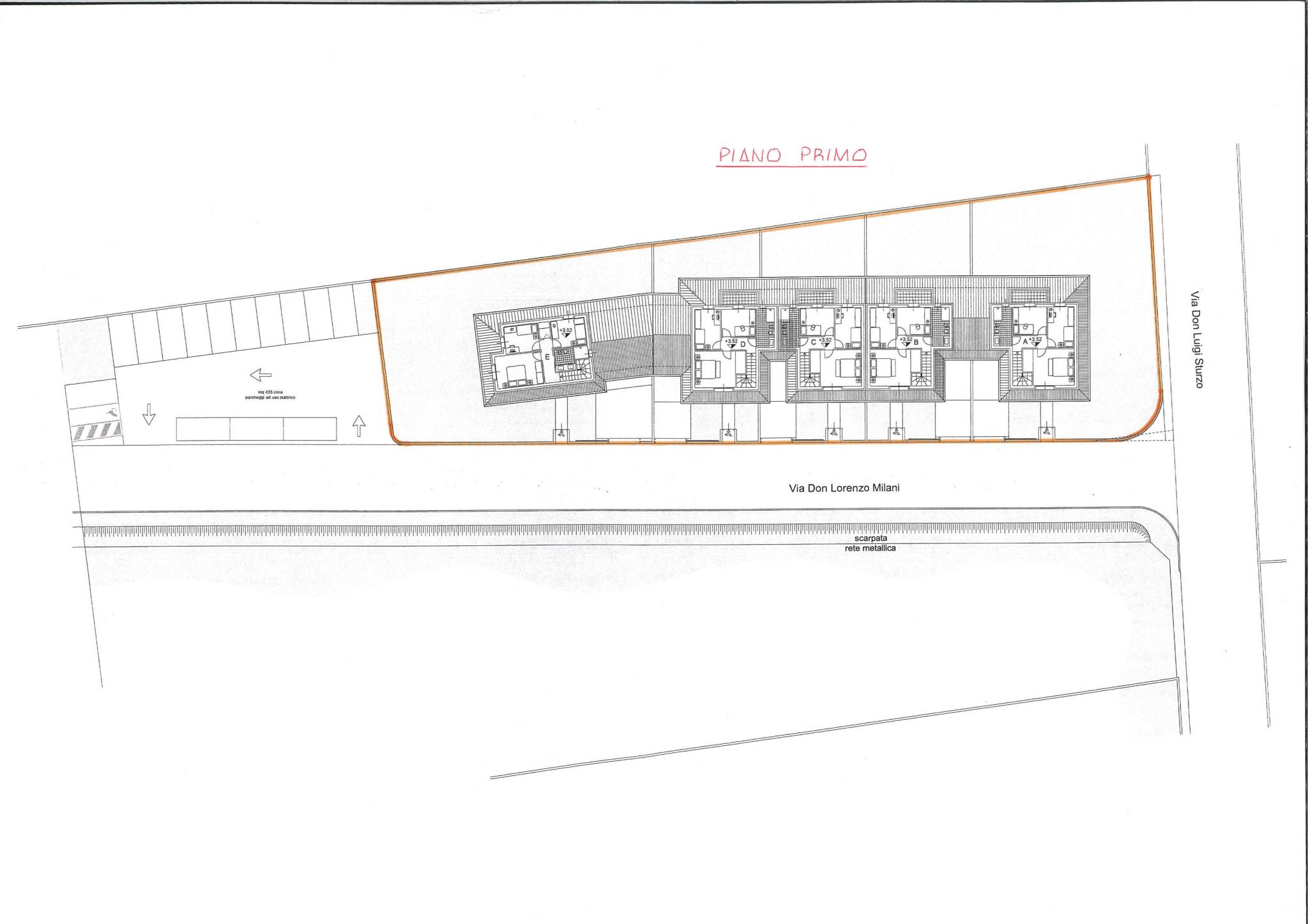
In zona residenziale ma ben servita ( supermercato e farmacia a 200 metri ), distribuita su un lotto complessivo di 240 mq, nuova costruzione di villa composta al piano terra da soggiorno, cucina e bagno per un totale di circa 64 metri quadrati, al piano primo tre camere, bagno e balcone ( 66 mq). L' alto efficientamento energetico è garantito dall' impianto di riscaldamento a pavimento, di deumidificazione, raffrescamento, ricircolo dell'aria e fotovoltaico con potenza di 4,5 kw. Portico, giardino privato di circa 340 mq e box di 22 metri completano la proprietà. Consegna dicembre 2026. Maggiori informazioni in ufficio. Euro 350.000, 00.
In zona residenziale ma ben servita ( supermercato e farmacia a 200 metri ), distribuita su un lotto complessivo di 240 mq, nuova costruzione di villa composta al piano terra da soggiorno, cucina e bagno per un totale di circa 64 metri quadrati, al piano primo tre camere, bagno e balcone ( 66 mq). L' alto efficientamento energetico è garantito dall' impianto di riscaldamento a pavimento, di deumidificazione, raffrescamento, ricircolo dell'aria e fotovoltaico con potenza di 4,5 kw. Portico, giardino privato di circa 340 mq e box di 22 metri completano la proprietà. Consegna dicembre 2026. Maggiori informazioni in ufficio. Euro 350.000, 00.
Consistenze
| Descrizione | Superficie | Sup. comm. |
|---|---|---|
| Principali | ||
| Immobile - piano terra | 65 Mq | 65 Mqc |
| Immobile - 1° piano | 65 Mq | 65 Mqc |
| Totale | 130 Mqc | |
