Rif: IMMO-124984893
FARA GERA D'ADDA
BERGAMO
FARA GERA D'ADDA FRAZIONE BADALASCO:
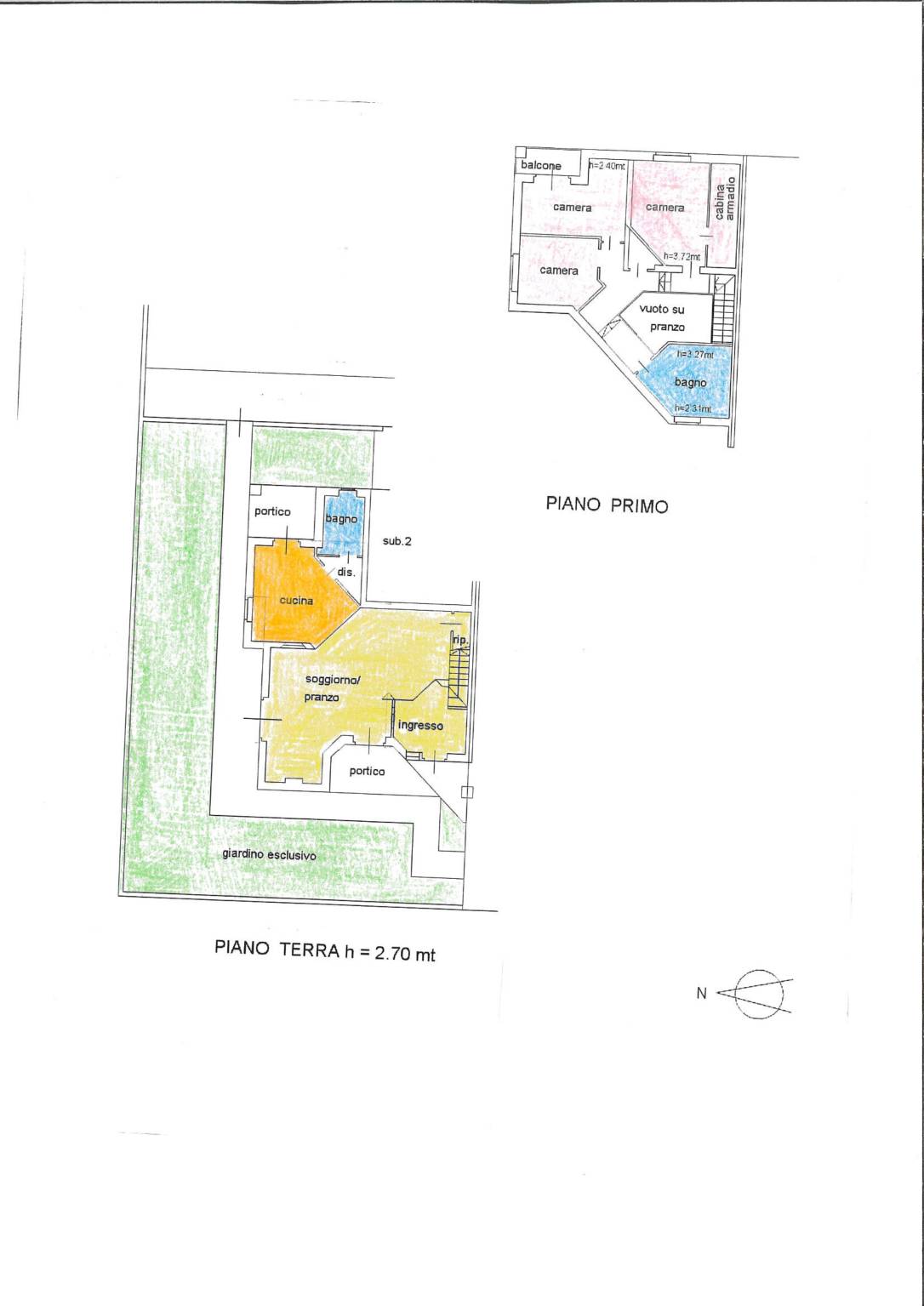
Proponiamo in vendita villa disposta su due livelli; composta al piano terra da ingresso, cucina abitabile, angolo pranzo, soggiorno con camino, bagno e ripostiglio per un totale di circa 93 metri quadrati. Il piano primo, con soffitto a travi a vista, si sviluppa per 98 metri quadrati suddivisi in tre camere, cabina armadio, bagno e suggestivo ballatoio con affaccio sul soggiorno. Balcone, due portici e giardino sui tre lati rendono fruibili gli spazi esterni. Riscaldamento a pavimento, climatizzatori, zanzariere e tende da sole accessoriano la villa. Autorimessa doppia di circa 25 mq.
Proponiamo in vendita villa disposta su due livelli; composta al piano terra da ingresso, cucina abitabile, angolo pranzo, soggiorno con camino, bagno e ripostiglio per un totale di circa 93 metri quadrati. Il piano primo, con soffitto a travi a vista, si sviluppa per 98 metri quadrati suddivisi in tre camere, cabina armadio, bagno e suggestivo ballatoio con affaccio sul soggiorno. Balcone, due portici e giardino sui tre lati rendono fruibili gli spazi esterni. Riscaldamento a pavimento, climatizzatori, zanzariere e tende da sole accessoriano la villa. Autorimessa doppia di circa 25 mq.
Consistenze
| Descrizione | Superficie | Sup. comm. |
|---|---|---|
| Principali | ||
| Immobile - piano terra | 93 Mq | 93 Mqc |
| Immobile - 1° piano | 98 Mq | 98 Mqc |
| Totale | 191 Mqc | |
